Eladó Családi ház, Őrbottyán

#201100774

Eladó Családi ház

92.9 millió Ft

Őrbottyán Vácbottyán
Alapterület:
113 m2
Szobák száma:
5
Állapot:
Új építésű
Építési mód:
Tégla

Kérjen személyes bemutatást!
Adja meg adatait, és hogy mikor érne rá!

Az Adatkezelési tájékoztatót elolvastam és elfogadom.

Megfelelő időpontok

Hétköznap délelőtt
Hétköznap délután
Hétköznap este
Hétvégén délelőtt
Hétvégén délután
Hétvégén este
Kérés elküldése
Nincs
720 m2
Hőszigetelt
Hőszivattyú
Bútorozatlan
1
Dupla komfort
230 - 400 Volt
Van, saját vízórával
Vezetékes gáz
Közműhálózatba bekötve

Eladó új építésű családi ház Őrbottyánban.

ASZFALTOZOTT UTCÁBAN!

 

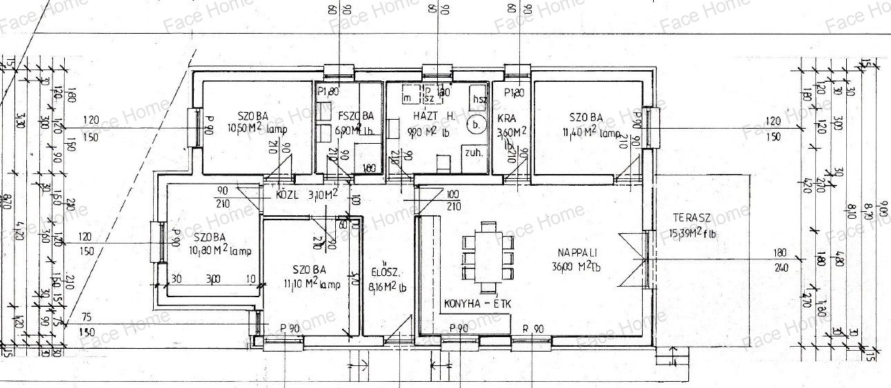
Eladó Őrbottyánban egy nettó 113,41 nm lakóterületű + terasz, nappali + 4 szoba, DUPLAKOMFORTOS, új építésű, földszintes, tégla építésű családi ház, 720 nm-es telken.

 

 

A HÁZ JELLEMZŐI:

A 2025-ben épülő ház falai 30 cm-es TÉGLÁBÓL épülnek + 15 cm dryvit szigeteléssel. A tető beton cseréppel lesz fedve.

A fűtés HŐSZIVATTYÚVAL fog üzemelni, a hő leadás padlófűtéssel fog történni.

A szobákban laminált parketta, a vizes helyiségekben kerámia lapok kerültek

Az ablakok 3 rétegű, műanyag vázas, thermo üvegesek.

A kertben található ásott, gyűrűs kút.

 

Várható átadás: 2026. II. negyedév

 

HELYISÉGLISTA: előtér (8,16 nm), nappali-konyha-étkező (36 nm), kamra (3,6 nm), 4 szoba (10,5 nm, 10,8 nm, 11,1 nm, 11,4 nm), fürdőszoba káddal (6,9 nm), külön WC (1,95 nm), háztartási helyiség + zuhanyzó (9,9 nm), közlekedő (3,1 nm), terasz (15,39 nm).

 

KÖRNYÉK: A ház csendes mellékutcában található. A közelben megtalálható óvoda, iskola, élelmiszerbolt.

KÖZLEKEDÉS: Vasútállomás 1,5 km, ahonnan Budapest Nyugati pályaudvar érhető el kb. 1 óra alatt, buszmegálló 2 perc gyalogosan, ahonnan Újpest Városkapu érhető el.

 

Tekintse meg ezt a jó adottságú ingatlant!

Tapasztalt és felkészült kollégáink segítenek Önnek akár a hétvégén is.

Köszönjük, hogy megtisztel bizalmával, és irodánkat választja új otthona kiválasztására.

Kérem, nézze meg irodánk további kínálatát, hívjon igényeivel és segítünk, akár a HÉTVÉGÉN is. Ha esetleg még nem sikerült eladni ingatlanát, kedvezményes feltételekkel vállaljuk annak értékesítését!

Kérdése van?
Adja meg adatait és felhívjuk!

Az Adatkezelési tájékoztatót elolvastam és elfogadom.
Üzenet küldése