Eladó Családi ház, Iklad

#201100771

Eladó Családi ház

84.9 millió Ft

Iklad
Alapterület:
100 m2
Szobák száma:
4
Állapot:
Új építésű
Építési mód:
Tégla

Kérjen személyes bemutatást!
Adja meg adatait, és hogy mikor érne rá!

Az Adatkezelési tájékoztatót elolvastam és elfogadom.

Megfelelő időpontok

Hétköznap délelőtt
Hétköznap délután
Hétköznap este
Hétvégén délelőtt
Hétvégén délután
Hétvégén este
Kérés elküldése
Nincs
1 382 m2
Hőszigetelt
Kondenzációs kazán
Kertre néző
Bútorozatlan
1
Bevezetve (230 Volt)
Van, saját vízórával
Vezetékes gáz
Közműhálózatba bekötve

Eladó új építésű családi ház Ikladon.

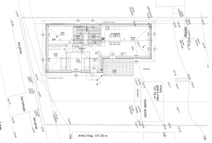
Eladó Ikladon egy nettó 99,24 nm lakóterületű + terasz, nappali + 3 szoba, DUPLAKOMFORTOS, PANORÁMÁS, új építésű, egyszintes, tégla építésű családi ház, 1382 nm-es telken.


A HÁZ JELLEMZŐI:
Az épülő ház falai 30 cm-es téglából épülnek + 15 cm dryvit szigeteléssel. A tető beton cseréppel lesz fedve.
A fűtésről kondenzációs kombi-cirkó fog gondoskodni, a hő leadás padlófűtéssel fog történni. A hűtésről fali klíma fog gondoskodni.
A szobákban laminált parketta, a vizes helyiségekben kerámia lapok kerülnek, a műszaki tartalomban vállalt árakig.
Az ablakok 3 rétegű, műanyag vázas thermo üvegesek lesznek.
Parkolás beállón lehetséges.

A telken található egy 40 nm-es melléképület.

HELYISÉGLISTA: előszoba (4,93 nm), nappali (25 nm), konyha-étkező (15,44 nm), 3 szoba (12,3 nm, 12 nm, 11,08 nm), fürdőszoba+ WC (7,2 nm), háztartási helyiség + WC (6,02 nm), közlekedő (5,7 nm), terasz (16,73 nm),

KÖRNYÉK: A ház csendes, aszfaltozott mellékutcában található. A közelben megtalálható óvoda, iskola, élelmiszerbolt.
KÖZLEKEDÉS: Buszmegálló és vasútállomás pár perc gyalogosan.



Tekintse meg ezt a jó adottságú ingatlant!
Tapasztalt és felkészült kollégáink segítenek Önnek akár a hétvégén is.
Köszönjük, hogy megtisztel bizalmával, és irodánkat választja új otthona kiválasztására.
Kérem, nézze meg irodánk további kínálatát, hívjon igényeivel és segítünk, akár a HÉTVÉGÉN is. Ha esetleg még nem sikerült eladni ingatlanát, kedvezményes feltételekkel vállaljuk annak értékesítését!

Kérdése van?
Adja meg adatait és felhívjuk!

Az Adatkezelési tájékoztatót elolvastam és elfogadom.
Üzenet küldése